Featured For Sale
Stunning new garden apartment for Sale in Mamilla Jerusalem
  • $9,900,000

Description

Stunning New Garden Duplex for Sale – Mamilla, Jerusalem

Located in one of the most unique and prestigious areas of central Jerusalem – on the seam of Mamilla and Talbieh, with Abraham Lincoln Street to the south, Agron Street to the north, and King David Street to the east,

just a short 200-meter walk away.

Within walking distance of the Old City, Rechavia, the Great Synagogue,

Mamilla Mall, the City Center, and many of Jerusalem’s cultural and lifestyle landmarks.

Property Highlights:

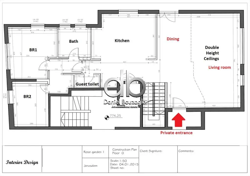
  • Approx. 300 sqm on two levels

  • 5 bedrooms: 2 on the main floor, 3 + safe room on the upper floor

  • 3 en-suite bedrooms and a total of 4.5 bathrooms

  • Private entrance

  • Over 250 sqm of private garden surrounding the apartment

  • Private 8 sqm storage room

  • Private indoor parking

  • Double-height living room with nearly 6.5-meter ceilings for a dramatic sense of space

  • Elevator access directly into the apartment on both floors from the parking level

  • Option to add a swimming pool

The Building:
A boutique development of just 9 units, ranging from 220–400 sqm each.
Built by a syndicate of families committed to the highest standards of construction, design, and finishing – blending classic Jerusalem architectural character with modern luxury and cutting-edge building quality.

Architectural plans

  • Address: Zamenhuf
  • City: Jerusalem
  • State: Israel
  • Area - neighborhood: Mamilla, TALBIYA
  • State: Israel

Details

Updated on December 26, 2022 at 2:49 pm
  • Property number 5585
  • Price $9,900,000
  • Property size 300 SqM
  • Out door areas 250 SqM
  • bedrooms 6.5
  • Bathrooms 4.5
  • Parking size 5
  • Property type Garden duplex
  • Property status For Sale

Compare listings

Compare