Rare Opportunity in Old Beit HaKerem – Expansive Lot with Two Homes & Building Rights for Sale
- ₪21,000,000
- ₪21,000,000
Description
Rare Opportunity in Old Beit HaKerem – Expansive Lot with Two Homes & Building Rights for Sale
When something truly exceptional hits the market, there’s no need for persuasion.
Located on the sought-after and picturesque Ha-Banai Street, this rare hidden gem features a spacious lot with two private homes and significant building potential.
Property Highlights:
Historic Charm & Modern Comfort – Two distinct houses on opposite ends of the lot for complete privacy:
✔ House 1: An original 1930s historic building, expanded in 1960
✔ House 2: A modern stone-clad home built in 1990, offering eastern views and bordering a green open space
🌿 Nearly 1 Dunam (931 sqm) of Prime Land – A rare and prestigious opportunity in one of Jerusalem’s most desirable neighborhoods
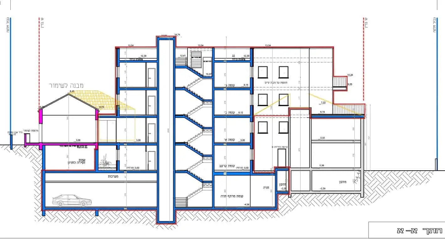
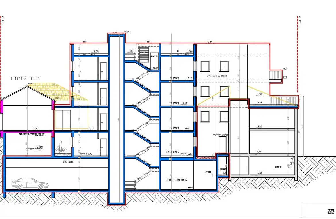
Approved Urban Building Plan (TABA):
📐 Up to 1,300 sqm of built area
🏢 Potential for up to 9 residential units
🚗 Underground parking & storage level
This is a one-of-a-kind opportunity for developers, investors, or those seeking a private estate with future potential.
Contact me for more details and to schedule a private tour.
Address
Open in Google Maps-
Address: Ha-Banai
-
City: Jerusalem
-
State: Israel
-
Area - neighborhood: Beit HaKerem
-
State: Israel
Details
Updated on November 20, 2025 at 7:21 pm-
Property number 39618
-
Price ₪21,000,000
-
Property size 1300 SqM
-
Out door areas 931 SqM
-
Property type Apartment, Building, Plot, Private House / Villa
-
Property status For Sale, SOLD
