Best location in Yemin Moshe, Unique house for sale
- ₪11,000,000
- ₪11,000,000
Description
Best location in Yemin Moshe, Unique house for sale
A rare opportunity to own a historic and character-filled home in one of Jerusalem’s most prestigious and picturesque neighborhoods.
This exceptional property is situated in the upper part of Yemin Moshe, in the most sought-after location – featuring direct access from two streets,
including a private street exclusive to residents.
Private parking is located just steps from the house.
The main structure of the home dates back to 1880, preserving its original charm with architectural details like arched ceilings, stonework, and authentic Jerusalem character.
🏠 Property Highlights:
-
Breathtaking panoramic views of the Old City and the scenic beauty of Yemin Moshe
-
Open balcony off the living room
-
Private patio off the study area
-
Multiple private entrances – ideal for hosting, family, or work-from-home use
-
Unique layout offering privacy and flexibility
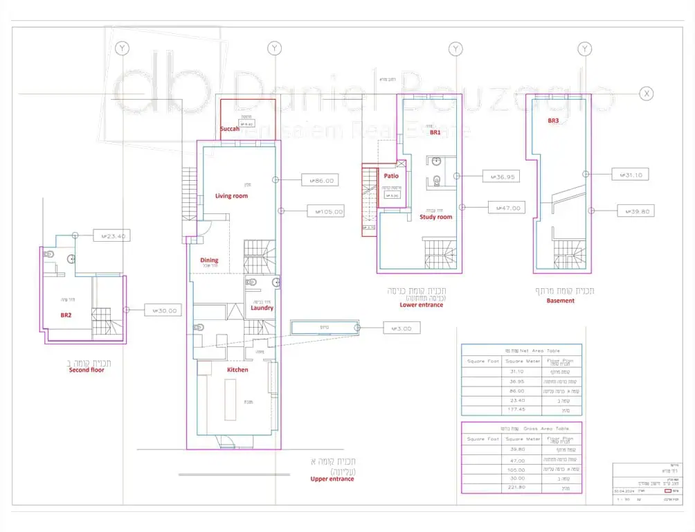
🗺️ Layout Overview:
-
Lower level (street entrance):
Private patio, 2 bedrooms, and a study – with its own separate entrance -
Main floor:
Entry from the upper private street, leading into the dining area with domed ceilings, adjacent kitchen, and main living room with terrace -
Upper level:
Private master suite a few steps above, situated on its own level for maximum privacy
📐 Dimensions:
-
Total built footprint: 221 sqm (gross)
-
Net interior space: 178 sqm
A perfect blend of historic charm, functional space, and unmatched location – ideal as a private residence, holiday home, or luxury investment.
📞 Contact us for more details and to schedule a private tour.
Address
Open in Google Maps-
Address: Tura Street
-
City: Jerusalem
-
State: Israel
-
Area - neighborhood: Yemin Moshe
-
State: Israel
Details
Updated on June 22, 2025 at 4:37 pm-
Property number 35605
-
Price ₪11,000,000
-
Property size 221 SqM
-
Out door areas 10 SqM
-
bedrooms 4
-
Rooms 6
-
Bathrooms 3.5
-
Property type Apartment, Cottage / Town house
-
Property status For Sale







