דירת גן נדירה למכירה בכפר דוד – ירושלים
- ₪14,500,000
דירת גן נדירה למכירה בכפר דוד – ירושלים
- ₪14,500,000
תיאור
דירת גן נדירה למכירה בכפר דוד – ירושלים
במרכז אחת השכונות היוקרתיות והמבוקשות ביותר בירושלים,
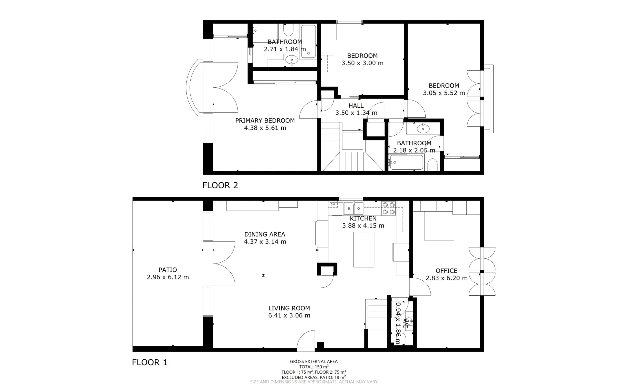
דירת גן יוצאת דופן המשלבת אלגנטיות, פרטיות ונוחות.
167 מ”ר בנוי + גינה פרטית דרומית ומטופחת בשטח 53 מ”ר, מושלמת לאירוח תחת כיפת השמיים ומתאימה להקמת סוכה.
הדירה במצב מצוין ומוכנה לכניסה מיידית.
מאפיינים עיקריים:
✅ ארבעה חדרי שינה מרווחים
✅ שני חדרי רחצה מלאים + שירותי אורחים
✅ שלושה כיווני אוויר מוארים
✅ שלוש חניות פרטיות
✅ שלושה מחסנים נפרדים
במרחק הליכה קצר מקניון ממילא, העיר העתיקה ובתי המלון המובילים ברחוב המלך דוד
הזדמנות נדירה למגורים בלב אחת מהכתובות המבוקשות והיוקרתיות ביותר בעיר.
כתובת
פתח במפות גוגל-
כתובת: כפר דוד
-
עיר: ירושלים
-
מדינה: ישראל
-
אזור - שכונה: ממילא
פרטים
Updated on ספטמבר 18, 2025 at 1:48 pm-
מספר נכס 41828
-
מחיר ₪14,500,000
-
גודל הנכס 167 מ"ר
-
שטח חוץ 53 מ"ר
-
חדרי שינה 4
-
Rooms 5
-
חדרי רחצה 3
-
חניה 3
-
סוג הנכס דופלקס גן, דירה, דירת גן
-
מצב הנכס למכירה
